第二节穿越道路与铁路施工
燃气管道在铁路、电车轨道和城市主要干道下穿过时,应敷设在钢套管或钢筋混凝土套管内。穿过铁路干线时,应敷设在涵洞内。套管两端应超出路基底边,至最外边轨道的距离不得小于3m.穿跨管道应选择质量好的长度较长的钢管,以减少中间焊缝。焊缝应100%射线探伤检查,其合格级别应按现行国家标准《钢熔化焊对接接头射线照相和质量分级》(GB3323)的“Ⅱ级焊缝标准”执行。穿越工程钢制套管的防腐绝缘应与燃气管道防腐绝缘等级相同。
管道穿越铁路或公路的夹角应尽量接近90?,在任何情况下不得小于30?。应尽可能避免在潮湿或岩石地带以及需要深挖处穿越。
管道穿越铁路或公路时,管顶距铁路轨枕下面的埋深不得小于1.5m;距公路路面埋深不得小于1.2m;距路边坡最低处的埋深不得小于0.9m。
当条件许可时,也可采用跨越方式交叉。输气管线跨越铁路时,管底至路轨顶的距离,电气化铁路不得小于11.lm,其他铁路不得小于6m。
一、穿越铁路
1、穿越铁路的一般要求:
(1)穿越点应选择在铁路区间直线段路堤下,路堤下应排水良好,土质均匀,地下水位低,有施工场地。穿越点不宜选在铁路站区和道岔段内,穿越电气化铁路不得选在回流电缆与钢轨连接处。
(2)穿越铁路宜采用钢筋混凝土套管顶管施工。当不宜采用顶管施工时,也可采用修建专用桥涵,使管道从专用桥涵中通过。
(3)输气管穿越铁路干线的两侧,需设置截断阀,以备事故时截断管路。
(4)穿越铁路的位置应与铁路部门协商同意后确定。
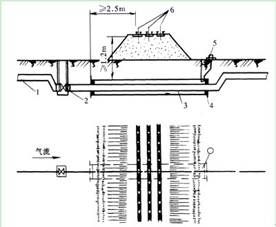
2、穿越铁路的平面与纵断面布置燃气管道在铁路下穿过时,应敷设在套管或地沟内,如图5-5(课本P63图4-6),管道敷设在钢套管内,套管的两端超出路基底边,至铁路边轨的距离不小于2.5m,置于套管内的燃气管段焊口应该最少,并需经物理方法检查,还应采用特加强绝缘防腐,对于埋深的要求是:从轨底到燃气管道保护套管管顶应不小于1.2m。在穿越工厂企业的铁路专用支线时,燃气管道的埋深有时可略小一些。

图5-5 燃气管道穿越铁路1-燃气管道;2-阀门;3-套管;4-密封层;5-检漏管;6-铁道二、穿越公路
1.公路等级划分根据《公路工程技术标准》(JTJ01-1988),公路等级分为“汽车专用公路”和“一般公路”两类。汽车专用公路又分高速公路、一级公路、二级公路三个等级。汽车专用公路属国家重要交通干线,车流量大,路面宽度大,技术等级较高。一般公路又分为二、三、四级,其车流量,路面宽和技术等级和重要程度依序降低。此外还有不属国家管理的公路,如矿区公路,县乡公路等。
2.穿越公路的一般要求输气管线穿越公路的一般要求与铁路基本相同。汽车专用公路和二级一般公路由于交通流量很大,不宜明挖施工,应采用顶管施工方法。其余公路一般均可以明沟开挖,埋设套管,将燃气管敷设在套管内。套管长度伸出公路边坡坡角外2m。县乡公路和机耕道,可采用直埋方式,不加套管。
三、顶管施工方法
地下燃气管道穿越铁路、电车轨道和城市主要干道时,一般不允许开挖管沟,常采用顶管施工。运用液压传动产生巨大的推力向土壤内顶进套管,再将燃气管道安装在套管内。
1.顶力计算顶管施工必须有足够的顶力,才能克服管道在顶进过程中土壤对管道产生的阻力。顶管施工的主要设备(油泵、油缸或千斤顶)及配套设备(顶铁、槽钢)是根据所顶管道的最大顶力来进行选择的。顶管时,管道在土壤中承受两种力:管端阻力和管外壁与土壤的摩擦力,总的阻力为:
![]()
式中 D--管道外径(m);
q--土壤单位面积的抗力,取0.7~1.5MPa;
k--管道外壁在土壤中单位面积的摩擦力,取18~35kPa;
L--管道顶进长度(m)。
实际顶力取计算顶力的1.1~1.2倍,由此来选择设备。
2.顶管方法
(1)外挤压顶进法常用于400mm以下的小口径管顶管施工。顶管前在钢套管端部安设锥体顶头,根据土壤可压缩特性,借助顶力将管道四周土壤压缩而不需要管内出土。锥体顶头的作用是将正面阻力变为侧面摩擦力,从而大大降低管道顶进时的阻力。
(2)管内出土法对于700mm以上的套管顶进时,常采用管内出土法。先清除管内积土,出土范围一般应保持超过管端前200mm的距离,以减少管道顶进时的阻力。在顶管深度较浅及铁路和建筑物下顶进,要注意管内清土。防止管内泥土阻塞造成路面拱起、铁路轨道变形、建筑物和邻近管道损坏的事故发生(其原因是在顶力的作用下,管子顶端部分土壤结构发生变化。在管端不出土的顶进状态。管道顶进时的受力情况包括3部分:管外壁与土壤的摩擦力;管内壁与土壤的摩擦力;管顶端面阻力。在顶力的作用下,使管道不断顶进,上述3方面的阻力各自不断变化。管外壁与土壤的摩擦力是随着顶进管道长度的增加而均匀递增的,管内壁与管内土壤的摩擦力的变化却不同。
由于土壤的孔隙率为30%~60%,存在着较大的压缩性,进入管内的土壤与管内壁的摩擦力逐渐增加,使断面内土壤逐渐压缩。与此同时,管顶端面阻力也在逐渐增加,致使土壤从软塑状态逐步过渡到可塑状态、硬塑状态与坚硬状态,管前土壤将停止向管内移动(一般人管土长约2m),并迫使管前土壤不断压缩,由此而引起管端面阻力不断增加,总阻力迅速上升。停止向管内移动的管端面土层,随着顶力的增加不断压缩,并通过不断增大的土壤内摩擦角向管端四周传递顶力,由此造成路面拱起、铁路轨道变形等事故。因此,顶进管道管内出土应严格按照“先挖后顶”的顺序操作。
1)内挤压出土法
一般用于大口径套管顶进。在顶进套管顶端加焊特殊顶头,顶头外径略大于管径,内壁作成锥体(见图5-6),借助油缸的推力,将进入管内泥土压缩成小于管内径的圆柱体,使泥土与管底壁脱离。这样,不仅使管道摩擦力减小,而且可以防止管内的积土阻塞。为了使出土机械化,应配备内挤压机械出土专用设备。将切土钢丝绳绕顶头后壁1圈,并套人活络夹箍内4再将出土车推入管内靠近顶头后壁,并将阻动钢问压人槽内(事先按小车长度焊接于钢管内)。启动油泵,按额定长度要求顶进,挤压后进入管内的圆柱体土壤引至出土车上。管道每次顶进长度应根据出土车长度计算而定。
2)钻孔法
根据土壤类别选择钻头,在钻孔作业方便的一侧开挖工作坑。工作抗应有足够的工作面,其深度应按钻孔位置的需要而定,地下水位较高的地段应设排水井降低地下水位。工作坑应平整,垫上枕木及轨座后应找平。钻头中心和管道中心必须同心。钻孔时,对于粘土土壤,钻头应比主机低1%钻杆长度;对于岩性土壤,钻头应比主机低5%钻杆长度,以补偿钻头上抬。钻孔允许偏差为每钻40m长度±150mm。套管长度应与钻杆长度一致。钻进时应及时出土,钻进、出土、顶管,周而复始。穿越管道与干线管道应保持同心,穿越的管子允许偏差为管子长度的±2%。
3)人工挖土法
先挖工作坑,将管子放到工作坑内千斤顶的前面,人在管道的最前端挖土,为管子开路。挖出的土从管内运至管外,再吊到地面运走。挖一段后,摇动千斤顶顶管。
附件下载:地下燃气管道特殊施工



